IHRE WÜNSCHE

Ballerina - Smart-Glas Grifflos, Karbonmetallic Einzeilig mit Glas Arbeitsplatte & Ansatzinsel mit 20mm Granit Arbeitsplatte Taj Mahal

Andy Anzinger, Benjamin Baumann, Rainer Sitzmann

Angebot von
Blue kitchen GmbH (München)

Bodenseestr. 228
81243 München

Telefon: 089/897771-0

Preis:
8.999 € 23.600 €* inkl. MwSt. *Ursprünglicher Preis des Anbieters
Preis inklusive Geräte
Exklusives Angebot
» Einfach günstig finanzieren
Angebot beanstanden

Modell / Dekor ist nachlieferbar

Küche ist umplanbar

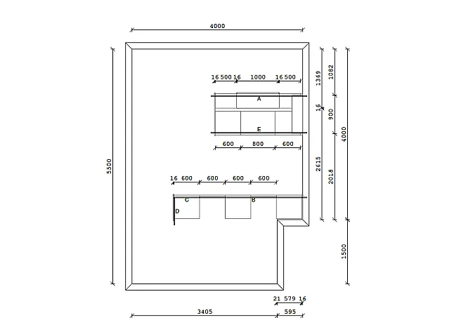
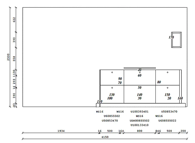
Anzahl Laufmeter: 5

Montage gegen Aufpreis möglich

Lieferung gegen Aufpreis im Umkreis von 300 km möglich

Artikelbeschreibung

Ballerina Smart-Glas Grifflos, Karbonmetallic Einzeilig mit Glas Arbeitsplatte & Ansatzinsel mit 20mm Granit Arbeitsplatte Taj Mahal

Angebotstyp: Musterküche

Ein zeitloses Design trifft auf moderne Funktionalität

Entdecken Sie die exklusive Ballerina-Küche "Smart-Glas Grifflos" in Karbonmetallic – ein Ausstellungsstück, das durch klare Linien und eine zeitlos-moderne Ästhetik besticht. Die Kombination aus mattem Glasdekor und der eleganten grifflosen Gestaltung verleiht Ihrer Küche eine beeindruckende Eleganz.

Hochwertige Ausstattung inklusive

Diese Küche überzeugt nicht nur optisch, sondern auch funktional:

  • Kochfeld mit Dunstabzug: Küppersbusch KMI8500.0SR
  • Backofen: Küppersbusch B6350.0S
  • Spülmaschine: Küppersbusch G6500.0v
  • ACHTUNG: Kühlschrank ist nicht mehr im Preis enthalten

Erleben Sie erstklassige Markenqualität gepaart mit modernster Technik.

Perfekte Planung für Ihre Bedürfnisse

Gestaltet mit einer eleganten Insel und einer praktischen Einzelzeile, bietet sie Flexibilität und Raum für individuelle Anpassungen. Die Küche ist umplanbar und das Dekor ist nachlieferbar, sodass Sie sie perfekt an Ihre Bedürfnisse anpassen können. Eine Granit-Arbeitsplatte in "Taj Mahal" rundet das Gesamtbild meisterhaft ab.

Attraktives Preis-Leistungs-Verhältnis

Sichern Sie sich diese hochwertige Küche mit einer Ersparnis von 58%. Nur für kurze Zeit am Standort München erhältlich, lohnt sich die Anreise auch aus Städten wie Augsburg, Nürnberg und Stuttgart.

Einfacher und komfortabler Kauf

Montage und Lieferung sind gegen Aufpreis möglich. Fragen Sie direkt über die Plattform von KüchenAtlas an und machen Sie diese traumhafte Küche zum Mittelpunkt Ihres Zuhauses.

Angebotsumfang: Preis inklusive Geräte

Kochfeld mit Dunstabzug - Küppersbusch KMI8500.0SR

Energieeffizienzklasse: A (Spektrum D bis A+++)

Energielabel herunterladen

Datenblatt herunterladen

Backofen - Küppersbusch B6350.0S

Energieeffizienzklasse: A+ (Spektrum D bis A+++)

Energielabel herunterladen

Datenblatt herunterladen

Spülmaschine - Küppersbusch G6500.0v

Energieeffizienzklasse: E (Spektrum G bis A)

Energielabel herunterladen

Datenblatt herunterladen


Onlinenachricht an Blue kitchen GmbH

Mit * gekennzeichnete Felder sind Pflichtfelder.

Jetzt Alle Angebote des Händlers anzeigen...